硒产品文化墙效果图(硒产品文化墙效果图)
中国建筑以其形式之美、技艺之美、意蕴之美,为我们的生活赋予了浓重的艺术色彩。

但受现代经济快速发展模式的影响,拔地而起的摩天大楼遮挡了人们的视野,如今,在生态环保意识不断增强的背景下,“绿色建筑”建设刻不容缓,
国家政策强制
随着我国提出“双碳”目标,BIPV命运的拐点悄然而至。
2021年10月,国家住建部发布《建筑节能与可再生能源利用通用规范》,明确规定新增建筑应安装太阳能光伏系统,太阳能建筑一体化应用系统的设计要跟建筑设计同步进行。值得注意的是,2022年4月1日起,这份关于“建筑+光伏”的国家规范已强制执行。这意味着,以后所有新建建筑项目都必须考虑节能问题,一定要做碳的核算,BIPV变成实实在在的绿色刚需。

几个月后,《城乡建设领域碳达峰实施方案》又提出,到2025年,新建公共机构建筑、新建厂房屋顶要力争光伏覆盖率达到50%。

政策对建筑项目的影响已经开始。而建筑能耗在全国总能耗里占比不小,想要利用新能源给建筑节能减排,光伏是现阶段最可行的办法。
事实上,BIPV绿色建筑风潮早在全国各地兴起。
BIPV遮阳
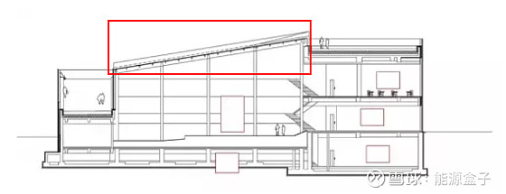
2011年,在浙江杭州,距离西湖不到5千米的地方,坐落着“中国首个5A级景区的国家湿地公园”——西溪国家湿地公园,最大的亮点是应用了光伏发电的现代技术。

(杭州西溪湿地龙嘴舌游客服务中心BIPV项目)
该建筑顶部三角形斜面使用BIPV光伏建材,安装容量共50.9KW,代替了玻璃采光顶,既能遮阳,也能发电。

从高空俯瞰,安装光伏后的建筑犹如一颗三角形透明琉璃玉石散落绿地中,不但节省了遮阳材料的投入,还能产出清洁能源,凸显绿色低碳理念。

据数据测算,安装光伏后该游客服务中心年发电量可达5万度,相当于减排二氧化碳50吨。

在湿地公园的游客服务中心,光伏作为绿色建筑的高标准实践,绿色生态的环境给与游客更多与自然接触的空间,缓解精神与压力的同时,促进着人与人的连接。

光伏玻璃
2019年,在中国北京世界园艺博览会上,占地2.3万平方米的中国馆依水而建,呈现出抱月形,取名为“锦绣·如意”,寓意吉祥如意。

(北京世园会中国馆BIPV)
“看到中国馆的巨大金顶,你会不会联想到故宫大殿上的金色琉璃瓦?”该巨型金顶的设计融入了绿色和科技的“因子”,安装了1024块半透明的金黄色光伏玻璃,采用“自发自用,余量上网”模式,为馆内采光、布景等运营提供了源源不断的电力支持。

有“如意”之名的中国馆,将恢弘与温润巧妙地融为一体。从广场中央远眺,由部分光伏玻璃组成的幕墙,像一袭华美的外衣,增添着如意的光彩。

但同样,该巧思也增加了施工难题,中因为是双曲面造型,玻璃幕墙几乎没有两块是一模一样的。这也意味着施工过程中安装玻璃幕墙,千万不能出错,错了一块都得回工厂重新加工。

海南BIPV建筑
2021年5月8日,海南恒大海花岛影视基地光伏项目,实现全容量并网。

(岛内儿童体验博物馆BIPV)
该项目位于海南省儋州市白马井镇恒大海花岛1号岛影视基地内,俯瞰该基地,多个建筑光伏系统与建筑融合,美观时尚。

项目在4个摄影棚楼顶上安装光伏组件,经新建1回10千伏电缆线路接入10千伏预装式开关站,接入电网,采用“自发自用,余电上网”模式。

该项目年发电量约318.75万千瓦时,可节约标准煤3.178千吨,为海南海花岛输送绿色清洁的电力能源。

(岛内海洋文化博物馆BIPV)
BIPV生态建筑
在武汉新能源研究院大楼,有一座利用水、风、太阳能等自然资源的低能耗无污染BIPV生态建筑,以马蹄莲为设计理念,寓意“武汉新能源之花”,是武汉未来科技城的标志性建筑物。

(武汉新能源研究院BIPV建筑)
整个建筑包括马蹄莲形主塔楼、5个树叶形实验室和一个花蕾形展示中心,“花盘”中央由太阳能光伏板源源不断吸收着太阳能。阳光下,“马蹄莲”迎风“绽放”,该研究院大楼每天发电超千度。

“花蕊”中竖立的是竖轴风力发电机,一年可发电48万度。大楼内,冲洗和灌溉用水,38%是“花盘”收集的雨水,每天可节水13吨,每年节水4800吨。

(效果图)
这座马蹄莲形状大厦,已投入使用5年,是目前我国最大的绿色仿生建筑,占地面积165亩、建筑面积6.8万平方米,安装BIPV后该建筑已获中国绿色建筑评价标准最高级三星奖。

BIPV光伏云廊
下面这个“光伏云廊”被称为上海松江最美地标,正是BIPV建筑,央视新闻联播曾对其进行报道。

该云廊全长1.5公里,屋顶由铝结构的网状屋盖相连,自重较钢结构更轻,铝结构上贴有柔性薄膜太阳能电池组件。

这样的设计不仅能减轻项目的结构负担,减少钢、铝等耗材用量,还能发电供建筑物使用。

整个屋盖波浪一般高低起伏,波峰波谷之间落差达18米,总面积约15万平方米,远看就像一条巨大的云廊。

这个屋顶,同样是一个巨大的LED天幕,可以进行科技+时尚的信息发布,到了夜晚,远远望去更是一道璀璨的风景线。
光伏幕墙
在城市中心,建筑能耗高是每一栋摩天大楼的通病,国家电投总部办公楼也不例外。东南西三向采光,使过于热情的阳光,带来了惊人的能耗。盛夏时节,仅空调的耗电量就高达15000度/天、消耗电费高达2万元/天。

该项目充分利用了建筑幕墙和屋顶的有效区域,采用光伏发电技术,改造后的BIPV幕墙,装机总容量为170.66千瓦,1858块BIPV光伏组件,年均发电12.69万千瓦时,节约能耗70.9万千瓦时,能够满足1000个家庭的年用电,可供一台电动汽车行驶440万千米,相当于环绕地球110圈。

(深色区域为BIPV光伏幕墙)
与常规燃煤电厂相比,该项目每年可节约标准煤耗275.8吨,减排灰渣99.84吨,减排PM101.5吨,减排二氧化碳825.9吨,相当于在北京金融街种下45000棵树,停用150辆小汽车。

(近看办公楼外立面光伏幕墙)
采用BIPV设计后,用一栋大楼的表面积,实现了采光、隔热、发电等多重效果,使建筑节能降耗与光伏发电达到了有效互补的理想状态。

该项目的节能降耗投资收益率高达9.37%,光伏发电和节能收益在25年设备周期里,可累计创收2373.5万元。如果考虑到政府每年因此节省下来的高温补贴,经济效益则更加可观!
光伏幕墙
在山西大同未来能源馆,通过建筑上部及屋顶整体的光伏建筑一体化的运用,营造出轻盈灵动的“云朵”形象。

该项目装机容量近1MW,利用建筑外表面通过BIPV技术实现建筑本体光伏发电,所有建筑用电均由自身的光伏发电建材转换而成,配以带储能的直流微网技术提高可再生能源利用效率,实现了“零能耗”的建筑能耗目标。

该能源馆建筑面积约2.8万平方米,展示面积约1.8万平方米,涵盖地上三层,地下一层。远远望去,一块块镶嵌好的光伏幕墙在阳光下闪耀着金属光泽,为未来能源馆平添了几分神秘的科技感。

该BIPV项目根据墙面、屋顶、遮阳篷等不同的建筑位置选择了不同的材料:立面是铜铟镓硒薄膜太阳能光伏组件(CIGS)及碲化镉薄膜太阳能组件(CdTe);屋面选择的是单晶硅光伏组件。

(正在安装的立面碲化镉仿铝板光伏建筑构件)
安装光伏后的馆内全方位展示了能源革命的山西图景、山西路径、山西智慧,将成山西省能源革命排头兵之尖兵的典型示范。

其实,国内优秀的BIPV案例数不胜数,光伏绿色建材与建筑遮阳结合,形成光伏外窗遮阳、光伏长廊遮阳,以及停车棚、体育场看台等光伏遮阳;光伏绿色建材安装在屋顶上,形成光伏屋面、光伏采光顶、光伏瓦屋面、光伏金属屋面等;光伏绿色建材还可以在建筑外墙上替代传统幕墙,形成光伏幕墙、光伏窗间墙等,都是比较常见的。
BIPV作为光伏和建筑结合的行业,可以说是建筑师们在传承的基础上应创新出新的建筑形式,并将其融于现代建筑的设计过程,并且能够适配大多数建筑,如平屋顶、斜屋顶、幕墙、天棚等等形式都可以安装。
BIPV与建筑和谐共生
对用户来说,目前,市面上BIPV产品的价格几乎是10年前的1/10,成为了人人都用得起的材料。在浙江、广东、北京等有补贴的地区,商业建筑安装光伏采光顶或光伏幕墙,预计5-8年就能回本,而同等时间里,传统建材只会不停折旧。
如果把隐形收益也算上,BIPV的经济优势更明显。因为从租金收入、电力收益等方面来看,未来,节能建筑会比普通建筑更吃香。
有人说:建筑的使用者是人,不能小看安全问题!确实,BIPV项目从设计到施工跟传统建材有很大不同,有很强的技术门槛。
事实上,近几年,从头部企业的动向也不难看出,许多光伏企业也认识到BIPV建材属性的重要性。许多之前被大家诟病的点,例如安全性、保温性、耐用性、防水性、材料强度等性能都大大提升了。

BIPV的应用使新建建筑唤起人们意识中对传统技艺的认同感,同时又符合现代建筑的审美形式,更好的做到与绿色自然和谐共生。
BIPV的主要优势就在于,高度契合绿色环保建筑理念及标准,是真正意义的绿色建材,通过对清洁能源的综合利用可以达到低能耗甚至零排放的效果。
未来,如何让产品和建筑呈现出更优美的艺术表达,成为令人印象深刻好项目?我们可以拭目以待。
继续阅读
- 暂无推荐
